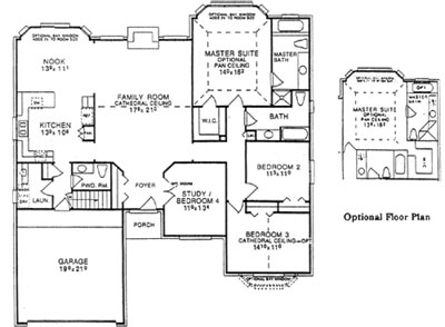
The Willowood

2,116 Square Feet
3 Bedrooms
2 1/2 Bathroom

 

 

 

© 2013 by Express Builders
51410 Milano Drive Suite 106 - Macomb, Michigan 48042
P: 586-992-2800   F: 586-992-2891