The Suzanne

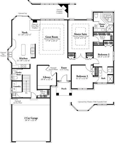
Great Room ranch with Approx. 2,143 square feet, study, 3 bedrooms, 2 1/2 bathroom, a 2 car standard garage and first floor laundry.  Three optional elevations. 
(Shown above with optional side turned 3 car garage.)
 

© 2013 by Express Builders
51410 Milano Drive Suite 106 - Macomb, Michigan 48042
P: 586-992-2800   F: 586-992-2891